top of page
Interior Architecture & Design

BORNEO HERRITAGE
Event Space Design
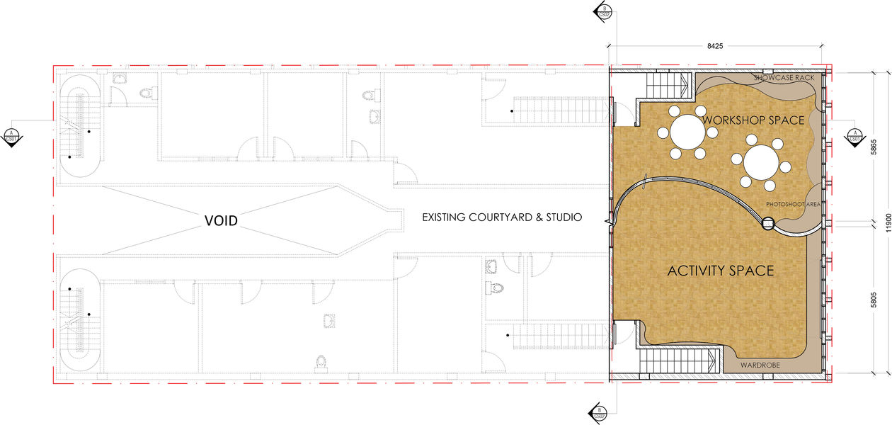
Providing space for users to experience the tradition and heritage of Borneo. To allow more people to understand the ethnic in Borneo through museum, traditional performance and local activities or games. Other than that, they can take part in the handcraft of Borneo such as bracelet, neckless, etc. right on the spot.
Borneo Herritage: Projects
DESIGN APPROACH
The concept was derived from the Iban traditional dance, movement. By abstracting the flow of movement, and combine it with the characteristic of the dance - elegant and smooth.
Borneo Herritage: Text
Borneo Herritage: Pro Gallery

Borneo Herritage: Work
Borneo Herritage: Pro Gallery
bottom of page













